• info

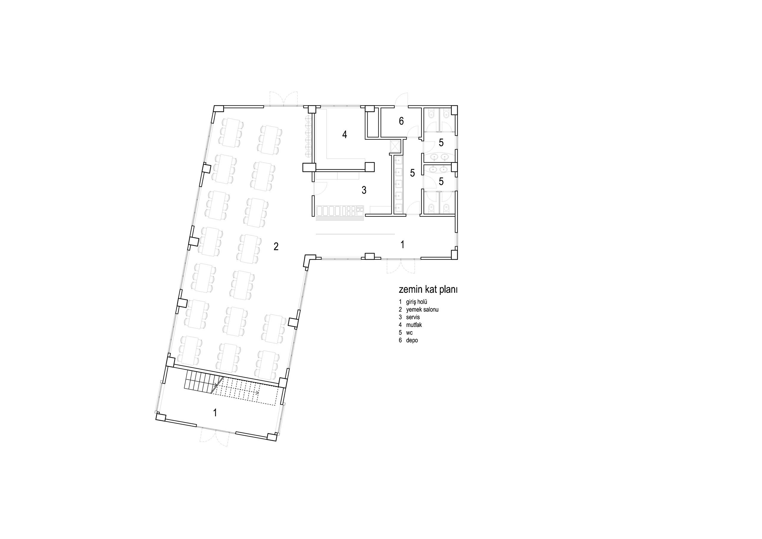
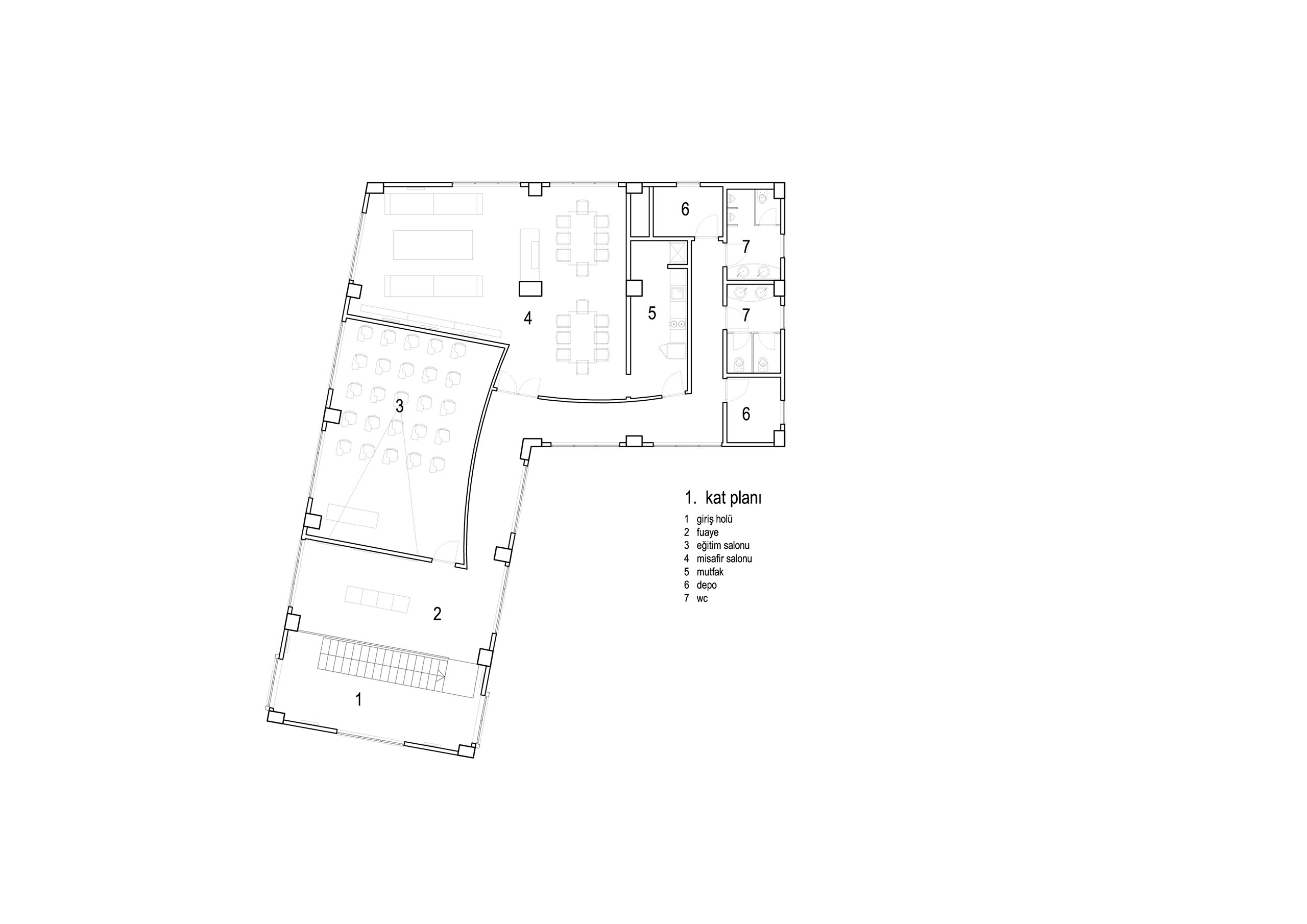
    KALIBRE BORU SOSYAL TESİS BİNASI

    KALIBRE BORU SOCIAL FACILITY BUILDING

     

    KALIBRE BORU A.Ş.

    2009 / Izmit, Turkey

    500 m²,  İnşa edildi / Completed

    Tasarım+Kontrol / Design + Cons. management

 

ara mimarlık 2023   /   all rights reserved   /   designed by ara