• info

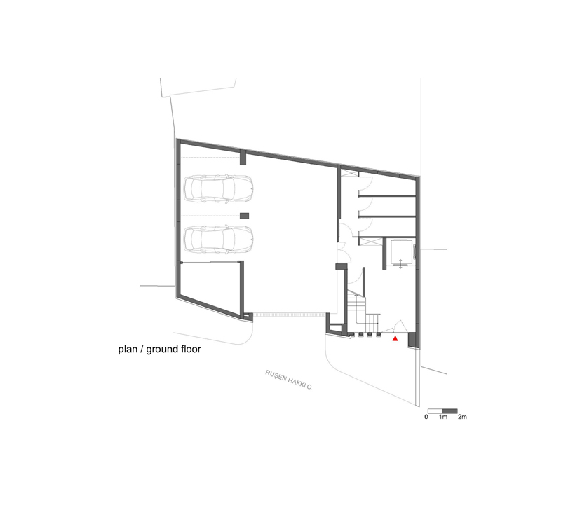
    Hüsnü EFE Apartmanı /

    Hüsnü EFE Residence

     

    2019-2022 / Izmit, Turkey

    1250 m², Tamamlandı / Completed

    Tasarım & Proje yönetimi /

    Design & Project management

 ara mimarlık 2023   /   all rights reserved   /   designed by ara